Diseño de seguridad de petroleros y clasificación de áreas peligrosas
Usted está aquí: Hogar » Noticias » Petrolero » Diseño de seguridad de petroleros y clasificación de áreas peligrosas

Diseño de seguridad de petroleros y clasificación de áreas peligrosas

Vistas:0     Autor:Editor del sitio     Hora de publicación: 2024-01-05      Origen:Sitio

Preguntar

facebook sharing button
twitter sharing button
line sharing button
wechat sharing button
linkedin sharing button
pinterest sharing button
whatsapp sharing button
sharethis sharing button
Diseño de seguridad de petroleros y clasificación de áreas peligrosas


Petrolero Son buques especializados en el transporte de líquidos a granel, y las cargas se refieren principalmente al transporte de petróleo crudo a granel y productos derivados del petróleo con puntos de inflamación de 60°C o menos.Según IEC-60092-502, los barcos que transportan productos derivados del petróleo con un punto de inflamación inferior a 60 °C tienen un mayor peligro, y la especificación tiene requisitos más detallados para la división del área peligrosa, y todos los equipos eléctricos en el área peligrosa deben cumplir con los requisitos de explosión correspondientes. -requisitos de prueba.La clasificación de áreas peligrosas de petrolero es una parte muy importante de su diseño de seguridad.


Petrolero-9


Principios de clasificación de áreas peligrosas para petroleros

La clasificación de áreas peligrosas para petrolero cumple principalmente con IEC-60092-502 para buques de carga líquida que transportan líquidos inflamables con un punto de inflamación no superior a 60 °C.Divide las áreas peligrosas en: Zona 0, Zona 1 y Zona 2, siendo la Zona 0 la más peligrosa y la Zona 2 la menos peligrosa.Las bodegas de carga, los tanques de aceite y agua, cualquier tubería de vacío a presión u otros sistemas de ventilación en la misma área que las bodegas de carga y los espacios internos que contienen carga o tuberías y equipos que manejan gases o vapores inflamables se clasifican como Zona 0.


La definición de Zona 1 es relativamente compleja y consta de lo siguiente: a) locales cerrados inmediatamente adyacentes a los tanques de carga líquida;b) compartimentos donde se almacenan las mangueras de carga, así como locales cerrados y semicerrados que contienen líneas de carga;y c) áreas adyacentes a escotillas, salidas de gas o vapor, válvulas dispensadoras de carga, bridas de tuberías de carga y válvulas de presión y vacío en los tanques de carga líquida.2 puede entenderse simplemente como una extensión de la Zona 1, por ejemplo, locales, entradas, salidas y aberturas de ventilación y aire de la Zona 1.La extensión exterior de la Zona 1 en el límite del área de cubierta abierta, como entradas y salidas, ventilación y salidas de aire.Además, de acuerdo con las características de la estructura de cubierta abierta, se considera Zona 1 el área de bodega de carga con material óseo 'revelado' hasta una altura de 2,4 metros sobre la cubierta, y la cubierta con material 'revelado'. 'Se considera Zona 2 el material óseo hasta una altura de 2,4 metros sobre la cubierta.


Cuadro de clasificación de áreas peligrosas de petroleros


Diseño e impacto de varios tipos de aberturas

las aperturas de petrolero se dividen principalmente en los tres tipos siguientes: en primer lugar, las aberturas para el acceso del personal y el uso diario, como tapas de alcantarilla, tapas de escotilla, puertas, ventanas y tapas de escotilla de lavado;en segundo lugar, la ventilación de la cabina, como ventilación natural, ventilación mecánica, ventilación con presión positiva;en tercer lugar, el sistema respirable, como tubos de aire, tubos batimétricos, válvulas de alivio de alta presión, mástiles respirables y liberadores de vacío.El primer tipo de apertura debe cumplir con los requisitos de uso de la tripulación y prestar la debida atención al impacto de las áreas peligrosas, y la discusión aquí se centra en la disposición y el impacto de la ventilación de las escotillas y los sistemas respirables especiales.


Una ventilación razonable y eficaz puede evitar la acumulación de gases combustibles, normalmente en forma de aire de admisión y aire de extracción.Para la ventilación de lugares peligrosos, en primer lugar, debe estar lejos de la ventilación de lugares seguros;en segundo lugar, la entrada de aire de los lugares peligrosos debe estar en la zona segura en la medida de lo posible; si es realmente inevitable, es necesario consultar con la sociedad de clasificación a tiempo;Por último, la salida de aire no se puede disponer en la zona más peligrosa, de lo contrario se deberá aumentar el nivel de peligro.Tomando la disposición de ventilación del compartimiento de la bomba de un petrolero Por ejemplo, el compartimiento de la bomba está adyacente al tanque de carga de aceite de un área; debido a factores de operación del personal, esta área no es un área inerte, por lo que el ambiente de ventilación del compartimiento de la bomba es muy importante.El compartimiento de la bomba está en el camino del bombeo (30 veces/hora) para ventilación, la entrada y salida de aire del compartimiento de la bomba deben estar lo más lejos posible de otras fuentes de peligro, y las dos no pueden afectarse entre sí.La entrada de aire debe estar en una zona segura, pero según las especificaciones, 3 metros alrededor de la entrada de aire de la cámara de la bomba también es una zona peligrosa, lo que debe tenerse en cuenta en el diseño.


Ventilación de los compartimentos de las bombas de carga.


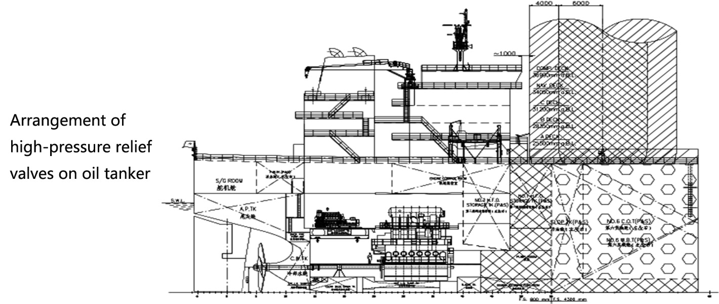
Las válvulas de ventilación de alta presión, los mástiles de ventilación y los liberadores de vacío en las bodegas de carga son dispositivos de ventilación específicos para petrolero.Estos dispositivos liberan petróleo y gas al aire exterior cuando la presión del petróleo y el gas en la bodega de carga es demasiado alta y, por lo tanto, la IEC también ha dado los límites más estrictos a las áreas peligrosas de dichos dispositivos.El área alrededor del tubo de respiradero de carga líquida que proporciona una gran cantidad de mezcla de gas o vapor generada durante la manipulación de la carga, lastre o expulsión de gas del tanque de carga líquida, el cilindro vertical de altura ilimitada con un radio de 6 metros hacia arriba desde el respiradero. tubería, y el área de la cubierta abierta dentro de un hemisferio con un radio de 6 metros hacia abajo desde el tubo de ventilación, o el área semicerrada de la cubierta abierta, pertenecen a la Zona 1, y los 4 metros fuera de la Zona 1 pertenecen a la Zona 2 , como se muestra en la Fig. En pocas palabras, su esfera de influencia es un cilindro con un radio de 10 metros y una altura ilimitada.La colocación de los ventiladores de las bodegas de carga debería tener en cuenta los siguientes factores: primero, mantenerse alejado de la superestructura;en segundo lugar, evitar la ventilación del almacén de cubierta en la sección de bodega de carga y del mástil reflector de cubierta;tercero, mantener una distancia de al menos 10 metros de la puerta del almacén de Bowman.


Disposición de válvulas de alivio de alta presión en petroleros.


Conclude

Para el diseño de petrolero, a prueba de explosiones es una parte importante del diseño de seguridad; si el diseño no es adecuado, supondrá un gran peligro para el uso futuro.Los diseñadores deben prestar atención a la clasificación de las áreas peligrosas del petrolero y prestar atención a la coordinación de varias partes en el proceso de diseño, de modo que todo tipo de aberturas, ventilación, aire y diseño de la cabina del petrolero. petrolero puede cumplir con los reglamentos y normas. qinhai mejora constantemente su nivel de gestión interna, haciendo hincapié en el control frontal de calidad y la gestión de procesos. Hemos obtenido el certificado de gestión de calidad CCS emitido por la Sociedad de Clasificación de China y hemos pasado la certificación y la evaluación y aceptación del impacto ambiental por parte de los departamentos gubernamentales. En los últimos años, la empresa cumple con el despliegue estratégico nacional y los requisitos de informatización y desarrollo inteligente de la industria naval. Promover la 'integración de los dos' y continuar implementando la automatización de la producción y la fabricación inteligente. Contamos con varios ensamblajes automáticos y semiautomáticos. líneas de producción.

CATEGORIA DE PRODUCTO

Productos aleatorios